รายละเอียดเพิ่มเติม
🔥 ขายด่วน! ที่ดินทำเลทอง ใจกลางบางกรวย ใกล้พระราม 5
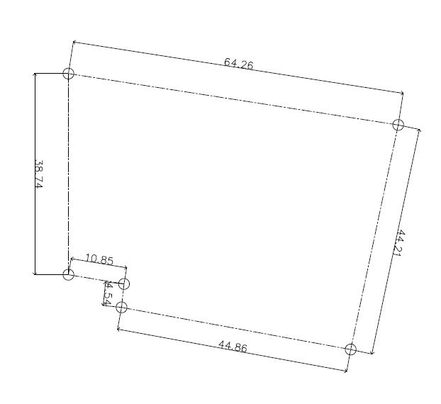
– ขนาด 1 ไร่ 2 งาน 35.8 ตารางวา (รวม 635.8 ตารางวา)
– หน้ากว้างรวม 43.28 ม.
– ความลึก 64.26 ม.
– ราคาเพียง 55,000 บาท/ตร.ว.
– ราคานี้หาที่ไหนไม่ได้อีกแล้ว!
📍 ที่ดินแปลงสวย รูปทรงดี ใช้งานได้เต็มพื้นที่
✔️ ติดถนนบ้านวัดอุทยาน – บ้านวัดใหญ่เจริญ
✔️ ที่ดินเสมอถนน ไม่ต้องถม พร้อมใช้
✔️ เข้า-ออกได้ 2 ทาง
✔️ อยู่ด้านหลังโรงเรียนเด่นหล้าอินเตอร์เนชั่นแนล (DLTS)
✔️ ห่างจากถนนพระราม 5 เพียงไม่กี่นาที
💎 ทำเลดีอนาคตไกล เหมาะสำหรับ
บ้านเดี่ยว / บ้านแฝด / ทาวน์โฮม
หอพัก / อพาร์ทเม้นท์
อาคารสำนักงาน / คลินิก / Wellness Center
โรงแรม / รีสอร์ท / Retreat
ตลาดนัด / พื้นที่พาณิชยกรรม
โครงการบ้านจัดสรร (ผังเมืองสีเหลือง)
📌 จุดเด่นทำเล (Location is King!)
– ใกล้ ตลาดพระราม 5
– เพียงไม่กี่นาทีถึง วงเวียนพระราม 5
– ใกล้ถนนหลัก ราชพฤกษ์ และ กาญจนาภิเษก
– เซ็นทรัล เวสต์วิลล์ / เดอะวอล์ค ราชพฤกษ์ ขับรถไปสบายๆ
– มีหมู่บ้านและโครงการใหม่ขึ้นรอบข้าง – ทำเลเติบโตแบบก้าวกระโดด
– จุดกลับรถใกล้ เดินทางเข้าเมืองหรือออกเมืองก็ง่าย
🔖 ขายถูกกว่าราคาตลาด
ที่ดินในโซนนี้ราคาทะลุไปแล้ว แต่เจ้าของใจดี
“ไม่อยากขาย…แต่จำเป็นต้องขาย”
ใครเร็ว ได้ก่อน!
💰 ราคาขายรวม: 34.97 ล้าน
(ตารางวาละ 55,000 บาท × 635.8 ตร.ว.)
ราคานี้ยังต่อรองได้สำหรับผู้สนใจจริง
🧾 ค่าโอนภาษี คนละครึ่ง
📞 สนใจติดต่อ
📲 เฮียปิ๊ก: 099-245-4979
📲 คุณนก: 093-449-9826
📩 LINE OA : @pkgroup
📍 ดูพิกัดที่ดิน: https://maps.app.goo.gl/CyXCcw2zGHaf1TUv5
⚠️ โอกาสแบบนี้…ไม่ได้มีบ่อยๆ
📌 ทำเลดี – ราคาดี – แปลงสวย – เข้าออกสะดวก
✨ เหมาะลงทุนมาก หรือจะซื้อเก็บไว้ให้ลูกหลานก็สุดยอด
#ที่ดิน #ขายที่ดิน #ที่ดินทำธุรกิจ #อสังหาริมทรัพย์ #ที่ดินทำเลทอง #ที่ดินติดถนนใหญ่ #ที่ดินบางกรวย #ที่ดินนนทบุรี #ลงทุนอสังหา #ที่ดินราคาถูก #ขายที่ดินด่วน
เอกสารทรัพย์สิน
ที่อยู่
Open on Google Maps- Address: ถนนบ้านวัดอุทยาน-บ้านวัดใหญ่เจริญ ตำบล บางขุนกอง อำเภอ บางกรวย นนทบุรี 11130
- City: บางกรวย
- State/county: นนทบุรี
- Zip/Postal Code: 11130
- Area: บางขุนกอง
รายละเอียด
Updated on กรกฎาคม 3, 2025 ที่ 10:25 pm- Property ID BH-26042
- Price 34,970,000฿
- Property Size 635.8 ตร.ม.
- Land Area 635.8 ตร.ม.
- Property Type ที่ดิน
- Property Status ขาย
เครื่องคำนวณสินเชื่อบ้าน
- Down Payment
- Loan Amount
- Monthly Mortgage Payment
- Property Tax
- Home Insurance
- PMI
- Monthly HOA Fees










